ちいきぼオフィス賃貸事務所・賃貸オフィス一覧東京都の賃貸事務所・賃貸オフィス一覧中央区の賃貸事務所・賃貸オフィス一覧東京銀座ビルディング

物件No.12601-0277

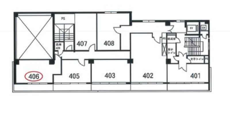
東京銀座ビルディング 4階 406号室 (12.00坪)

最終更新日:2026年2月20日

  • 賃料
    216,000 円(税抜)
  • 東京都 中央区 銀座6丁目 12-2 地図で確認する
  • 東銀座駅(東京メトロ日比谷線) 徒歩4分銀座駅(東京メトロ銀座線) 徒歩5分、銀座駅(東京メトロ丸ノ内線) 徒歩5分、銀座駅(東京メトロ日比谷線) 徒歩5分
  • 7階建(地下2階建)(1965年9月(築60年))
  • 2026年2月より入居可能

この物件の特徴・魅力

  • 24時間利用可能
  • 機械警備
  • 駅徒歩5分以内
  • 個別空調
  • 写真が豊富
  • 男女別トイレ
  • エレベーターあり
  • 10坪台オフィス
  • 6~10人向けオフィス

担当者コメント

担当者

東京銀座ビルディング 4階 406号室は、東京メトロ日比谷線「東銀座」から徒歩4分のコンパクトオフィス・貸事務所です。銀座エリアの好立地にあり、通勤や来客の際もスムーズに案内が可能です。約12坪の室内は、個別空調完備で少人数の事務所や作業スペースに最適です。トイレ、エレベーターも完備しております。定期借家契約ですが、期間の相談も柔軟に対応可能です。

平面図

地図

お問い合わせいただいた後は、
経験豊富なスタッフが全力でご支援いたします!

お電話でのお問い合わせ

0120-66-7102

受付時間 10:00~18:00(土日祝日を除く)

物件については[物件No.12601-0277]とお伝えください。

メールフォームでのお問い合わせ

ログインして問い合わせる

東京銀座ビルディング 4階 406号室 (12.00坪) の基本情報

物件No 12601-0277
建物名 東京銀座ビルディング 4階 406号室 (12.00坪)
所在地
東京都中央区銀座6丁目12-2  地図を見る 中央区で他の物件を探す
募集階層/階建 地上4階 / 7階建(地下2階建)
坪数(平米) 12.00 坪(39.66 ㎡)
築年月(竣工) 1965年9月(築60年)
耐震
構造 鉄筋コンクリート(RC)
最寄駅
用途 貸事務所・オフィス
最終更新日 2026年2月20日

契約条件

※表示価格はすべて税抜表示です
賃料
216,000 円(税抜)
坪単価 18,000円/坪
共益費/管理費等 48,000円
保証金/敷金 10ヶ月
保証金償却 2ヶ月
礼金 確認中
更新料 確認中
更新事務手数料 確認中
仲介手数料 確認中
造作価格
その他費用 契約期間相談可能/特別清掃費:新賃料1ヵ月分/2年毎
建物賃貸借区分 定期借家契約
契約期間 2年
指定保証会社必須 要加入
引渡時期 2026年2月より入居可能
引渡状態
諸条件・相談 事務所可

設備詳細・その他

設備 エレベーター、トイレ、給湯、エアコン
エレベーター 有り
トイレ 共用部、男女別
床仕様
空調 個別空調
駐車場
特徴・魅力 2沿線以上利用可
事務所内装の備考
ビル設備の備考
担当者コメント 東京銀座ビルディング 4階 406号室は、東京メトロ日比谷線「東銀座」から徒歩4分のコンパクトオフィス・貸事務所です。銀座エリアの好立地にあり、通勤や来客の際もスムーズに案内が可能です。約12坪の室内は、個別空調完備で少人数の事務所や作業スペースに最適です。トイレ、エレベーターも完備しております。定期借家契約ですが、期間の相談も柔軟に対応可能です。

お問い合わせいただいた後は、
経験豊富なスタッフが全力でご支援いたします!

お電話でのお問い合わせ

0120-66-7102

受付時間 10:00~18:00(土日祝日を除く)

物件については[物件No.12601-0277]とお伝えください。

メールフォームでのお問い合わせ

ログインして問い合わせる

ビルやお部屋の雰囲気

外観

内観・その他

周辺環境

  • 【駅】東京メトロ銀座駅  

  • 【駅】東銀座駅  

  • 【駅】築地市場駅  

  • 【駅】銀座一丁目駅  

  • 【駅】JR有楽町駅  

  • 【駅】新橋駅  

マップで見る周辺の類似物件

「人型アイコン」を地図上にドラッグすることで『Google ストリートビュー』に切り替わります。

※地図上の「対象地」は実際の場所ではない場合がございます。詳しくはお問い合わせください。

お問い合わせフォームはこちら

お問い合わせいただいた後は、
経験豊富なスタッフが全力でご支援いたします!

お電話でのお問い合わせ

0120-66-7102

受付時間 10:00~18:00(土日祝日を除く)

物件については[物件No.12601-0277]とお伝えください。

メールフォームでのお問い合わせ

ログインして問い合わせる
この物件をご覧頂くには、会員登録(無料)が必要です。【無料会員登録】
No.{{ index + 1 }}
営業おすすめ NEW

非公開 掲載終了 商談中 物件写真
{{ estate.price_pending_type_name }} 価格未定

お探しのエリアで今注目の物件

この物件をご覧頂くには、会員登録(無料)が必要です。【無料会員登録】
No.{{ index + 1 }}
営業おすすめ NEW

非公開 掲載終了 商談中 物件写真
{{ estate.price_pending_type_name }} 価格未定

近隣のよく似た物件リスト

この物件をご覧頂くには、会員登録(無料)が必要です。【無料会員登録】
No.{{ index + 1 }}
営業おすすめ NEW

非公開 掲載終了 商談中 物件写真
{{ estate.price_pending_type_name }} 価格未定

この物件と同じ特徴から探す

近隣の路線・駅から物件を探す

東京メトロ日比谷線 / 八丁堀 / 築地 / 銀座 / 日比谷 / 霞ヶ関

近隣のエリアから物件を探す

港区 / 千代田区 / 江東区 / 文京区 / 台東区

関東エリアエリアから物件を探す

東京都 / 神奈川県 / 埼玉県 / 千葉県