ちいきぼオフィス賃貸事務所・賃貸オフィス一覧大阪府の賃貸事務所・賃貸オフィス一覧大阪市中央区の賃貸事務所・賃貸オフィス一覧五味ビル

物件No.12601-0225

五味ビル 3階 (132.89坪)

最終更新日:2026年2月6日

  • 賃料
    1,063,120 円(税抜)
  • 大阪府 大阪市中央区 久太郎町2丁目 5-13 地図で確認する
  • 堺筋本町駅(大阪メトロ堺筋線) 徒歩3分堺筋本町駅(大阪メトロ中央線) 徒歩3分、本町駅(大阪メトロ御堂筋線) 徒歩3分
  • 6階建(地下1階建)(1959年12月(築66年))
  • 即入居可能

この物件の特徴・魅力

  • 24時間利用可能
  • 営業おすすめ
  • 駅徒歩5分以内
  • 即入居可能
  • 個別空調
  • OAフロア
  • 写真が豊富
  • 男女別トイレ
  • 駐車場あり
  • エレベーターあり
  • コスパ重視
  • 40人以上向けオフィス

担当者コメント

担当者

五味ビル 3階は、大阪メトロ堺筋線「堺筋本町」駅から徒歩3分の好立地にある大型のオフィス・貸事務所です。
約132坪の広大なワンフロアは、大規模な人員配置や多様なレイアウトに対応可能です。トイレ、エレベーター、個別空調、光ファイバー対応、セキュリティ完備と、現代のビジネスニーズに応える設備が整っています。
10年の長期定期借家契約が可能で、将来を見据えた安定的な拠点運営を希望される企業様に最適な物件です。

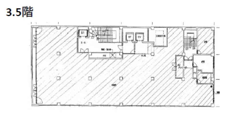
平面図

地図

お問い合わせいただいた後は、
経験豊富なスタッフが全力でご支援いたします!

お電話でのお問い合わせ

0120-66-7102

受付時間 10:00~18:00(土日祝日を除く)

物件については[物件No.12601-0225]とお伝えください。

メールフォームでのお問い合わせ

ログインして問い合わせる

五味ビル 3階 (132.89坪) の基本情報

物件No 12601-0225
建物名 五味ビル 3階 (132.89坪)
所在地
大阪府大阪市中央区久太郎町2丁目5-13  地図を見る 大阪市中央区で他の物件を探す
募集階層/階建 地上3階 / 6階建(地下1階建)
坪数(平米) 132.89 坪(439.30 ㎡)
築年月(竣工) 1959年12月(築66年)
耐震
構造 鉄筋コンクリート(RC)
最寄駅
用途 貸事務所・オフィス
最終更新日 2026年2月6日

契約条件

※表示価格はすべて税抜表示です
賃料
1,063,120 円(税抜)
坪単価 8,000円/坪
共益費/管理費等 265,780円
保証金/敷金 10ヶ月
保証金償却 5年未満30%引き/5年以上全額返還
礼金 確認中
更新料 確認中
更新事務手数料 確認中
仲介手数料 確認中
造作価格
その他費用 途中解約可/原状回復:自然損耗及び経年劣化を含めて借主負担/解約予告:6ヵ月前
建物賃貸借区分 定期借家契約
契約期間 10年
指定保証会社必須 要加入 (株式会社セーフティーイノベーション)※月額固定費の1ヶ月
引渡時期 即入居可能
引渡状態
諸条件・相談 事務所可

設備詳細・その他

設備 エレベーター、トイレ、エアコン
エレベーター 有り
トイレ 共用部、男女別
床仕様 OAフロア
空調 個別空調
駐車場 有 
特徴・魅力 2沿線以上利用可
事務所内装の備考
ビル設備の備考 セキュリティー有/光ファイバー引き込み可能
担当者コメント 五味ビル 3階は、大阪メトロ堺筋線「堺筋本町」駅から徒歩3分の好立地にある大型のオフィス・貸事務所です。 約132坪の広大なワンフロアは、大規模な人員配置や多様なレイアウトに対応可能です。トイレ、エレベーター、個別空調、光ファイバー対応、セキュリティ完備と、現代のビジネスニーズに応える設備が整っています。 10年の長期定期借家契約が可能で、将来を見据えた安定的な拠点運営を希望される企業様に最適な物件です。

お問い合わせいただいた後は、
経験豊富なスタッフが全力でご支援いたします!

お電話でのお問い合わせ

0120-66-7102

受付時間 10:00~18:00(土日祝日を除く)

物件については[物件No.12601-0225]とお伝えください。

メールフォームでのお問い合わせ

ログインして問い合わせる

ビルやお部屋の雰囲気

外観

内観・その他

周辺環境

  • 【駅】堺筋本町駅  

  • 【駅】本町駅  

マップで見る周辺の類似物件

「人型アイコン」を地図上にドラッグすることで『Google ストリートビュー』に切り替わります。

※地図上の「対象地」は実際の場所ではない場合がございます。詳しくはお問い合わせください。

お問い合わせフォームはこちら

お問い合わせいただいた後は、
経験豊富なスタッフが全力でご支援いたします!

お電話でのお問い合わせ

0120-66-7102

受付時間 10:00~18:00(土日祝日を除く)

物件については[物件No.12601-0225]とお伝えください。

メールフォームでのお問い合わせ

ログインして問い合わせる
この物件をご覧頂くには、会員登録(無料)が必要です。【無料会員登録】
No.{{ index + 1 }}
営業おすすめ NEW

非公開 掲載終了 商談中 物件写真
{{ estate.price_pending_type_name }} 価格未定

お探しのエリアで今注目の物件

この物件をご覧頂くには、会員登録(無料)が必要です。【無料会員登録】
No.{{ index + 1 }}
営業おすすめ NEW

非公開 掲載終了 商談中 物件写真
{{ estate.price_pending_type_name }} 価格未定

近隣のよく似た物件リスト

この物件をご覧頂くには、会員登録(無料)が必要です。【無料会員登録】
No.{{ index + 1 }}
営業おすすめ NEW

非公開 掲載終了 商談中 物件写真
{{ estate.price_pending_type_name }} 価格未定

この物件と同じ特徴から探す

近隣の路線・駅から物件を探す

大阪メトロ堺筋線 / 南森町 / 北浜 / 長堀橋 / 日本橋 / 天下茶屋

近隣のエリアから物件を探す

大阪市西区 / 大阪市天王寺区 / 大阪市浪速区 / 大阪市東成区 / 大阪市生野区

近畿エリアエリアから物件を探す

大阪府 / 兵庫県 / 京都府