ちいきぼオフィス賃貸事務所・賃貸オフィス一覧大阪府の賃貸事務所・賃貸オフィス一覧大阪市中央区の賃貸事務所・賃貸オフィス一覧北浜小谷

物件No.12601-0196

北浜小谷 6階 (15.71坪)

最終更新日:2026年2月3日

  • 賃料
    109,970 円(税抜)
  • 大阪府 大阪市中央区 北浜2丁目 3-14 地図で確認する
  • 北浜駅(京阪電鉄本線) 徒歩1分北浜駅(大阪メトロ堺筋線) 徒歩1分、淀屋橋駅(大阪メトロ御堂筋線) 徒歩7分
  • 11階建(新耐震基準/1987年8月(築38年))
  • 引渡時期はお問い合わせください

この物件の特徴・魅力

  • 24時間利用可能
  • 機械警備
  • 営業おすすめ
  • 駅徒歩5分以内
  • 個別空調
  • 写真が豊富
  • エレベーターあり
  • コスパ重視
  • 10坪台オフィス
  • 6~10人向けオフィス

担当者コメント

担当者

北浜小谷 6階は、京阪電鉄本線「北浜」から徒歩1分のコンパクトオフィス・貸事務所です。駅至近の好立地で、1階玄関にはオートロックを完備。セキュリティ面も安心です。ビジネスの拠点として利便性を重視する方に最適です。トイレ、個別空調、エレベーターを完備しており快適にご利用いただけます。

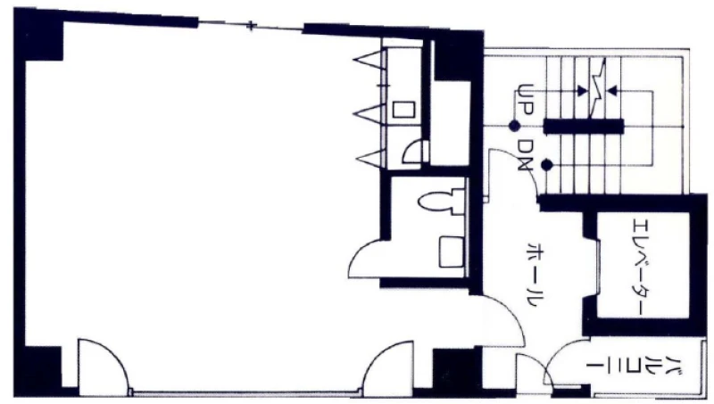
平面図

地図

お問い合わせいただいた後は、
経験豊富なスタッフが全力でご支援いたします!

お電話でのお問い合わせ

0120-66-7102

受付時間 10:00~18:00(土日祝日を除く)

物件については[物件No.12601-0196]とお伝えください。

メールフォームでのお問い合わせ

ログインして問い合わせる

北浜小谷 6階 (15.71坪) の基本情報

物件No 12601-0196
建物名 北浜小谷 6階 (15.71坪)
所在地
大阪府大阪市中央区北浜2丁目3-14  地図を見る 大阪市中央区で他の物件を探す
募集階層/階建 地上6階 / 11階建
坪数(平米) 15.71 坪(51.93 ㎡)
築年月(竣工) 1987年8月(築38年)
耐震 新耐震基準
構造 鉄骨鉄筋コンクリート(SRC)
最寄駅
用途 貸事務所・オフィス
最終更新日 2026年2月3日

契約条件

※表示価格はすべて税抜表示です
賃料
109,970 円(税抜)
坪単価 7,000円/坪
共益費/管理費等 47,130円
保証金/敷金 10ヶ月
保証金償却 スライド
礼金 確認中
更新料 確認中
更新事務手数料 確認中
仲介手数料 確認中
造作価格
その他費用 原状回復:自然消耗及び経年劣化を含めて借主負担/解約予告:6ヵ月前
建物賃貸借区分
契約期間 確認中
指定保証会社必須 要加入 (株式会社セーフティーイノベーション)※月額固定費の1ヶ月
引渡時期 お問い合わせください
引渡状態
諸条件・相談 事務所可

設備詳細・その他

設備 トイレ、エレベーター、エアコン、24時間セキュリティ、オートロック
エレベーター 有り
トイレ 室内、男女共用
床仕様
空調 個別空調
駐車場 無 
特徴・魅力 2沿線以上利用可
事務所内装の備考
ビル設備の備考 1階玄関オートロック
担当者コメント 北浜小谷 6階は、京阪電鉄本線「北浜」から徒歩1分のコンパクトオフィス・貸事務所です。駅至近の好立地で、1階玄関にはオートロックを完備。セキュリティ面も安心です。ビジネスの拠点として利便性を重視する方に最適です。トイレ、個別空調、エレベーターを完備しており快適にご利用いただけます。

お問い合わせいただいた後は、
経験豊富なスタッフが全力でご支援いたします!

お電話でのお問い合わせ

0120-66-7102

受付時間 10:00~18:00(土日祝日を除く)

物件については[物件No.12601-0196]とお伝えください。

メールフォームでのお問い合わせ

ログインして問い合わせる

ビルやお部屋の雰囲気

外観

内観・その他

周辺環境

  • 【駅】北浜駅  

マップで見る周辺の類似物件

「人型アイコン」を地図上にドラッグすることで『Google ストリートビュー』に切り替わります。

※地図上の「対象地」は実際の場所ではない場合がございます。詳しくはお問い合わせください。

お問い合わせフォームはこちら

お問い合わせいただいた後は、
経験豊富なスタッフが全力でご支援いたします!

お電話でのお問い合わせ

0120-66-7102

受付時間 10:00~18:00(土日祝日を除く)

物件については[物件No.12601-0196]とお伝えください。

メールフォームでのお問い合わせ

ログインして問い合わせる
この物件をご覧頂くには、会員登録(無料)が必要です。【無料会員登録】
No.{{ index + 1 }}
営業おすすめ NEW

非公開 掲載終了 商談中 物件写真
{{ estate.price_pending_type_name }} 価格未定

お探しのエリアで今注目の物件

この物件をご覧頂くには、会員登録(無料)が必要です。【無料会員登録】
No.{{ index + 1 }}
営業おすすめ NEW

非公開 掲載終了 商談中 物件写真
{{ estate.price_pending_type_name }} 価格未定

近隣のよく似た物件リスト

この物件をご覧頂くには、会員登録(無料)が必要です。【無料会員登録】
No.{{ index + 1 }}
営業おすすめ NEW

非公開 掲載終了 商談中 物件写真
{{ estate.price_pending_type_name }} 価格未定

この物件と同じ特徴から探す

近隣の路線・駅から物件を探す

京阪電鉄本線 / 関目 / 野江 / 京橋 / 天満橋 / 淀屋橋

近隣のエリアから物件を探す

大阪市西区 / 大阪市天王寺区 / 大阪市浪速区 / 大阪市東成区 / 大阪市生野区

近畿エリアエリアから物件を探す

大阪府 / 兵庫県 / 京都府