ちいきぼオフィス賃貸事務所・賃貸オフィス一覧大阪府の賃貸事務所・賃貸オフィス一覧堺市堺区の賃貸事務所・賃貸オフィス一覧中瓦町1丁

物件No.12601-0165

中瓦町1丁 3階 (44.82坪)

最終更新日:2026年1月16日

  • 賃料
    308,000 円(税抜)
  • 大阪府 堺市堺区 中瓦町1丁 3-11 地図で確認する
  • 堺東駅(南海電鉄高野線) 徒歩6分大小路駅(阪堺電気軌道阪堺線) 徒歩12分、花田口駅(阪堺電気軌道阪堺線) 徒歩14分
  • 4階建(1975年12月(築50年))
  • 引渡時期はお問い合わせください

この物件の特徴・魅力

  • 24時間利用可能
  • 営業おすすめ
  • コスパ重視
  • 40坪台オフィス
  • 21~30人向けオフィス

担当者コメント

担当者

中瓦町1丁 3階は、南海電鉄高野線「堺東」から徒歩6分の中規模オフィス・貸事務所です。 広さは44.82坪あります。 24時間利用可能で、事務所だけでなく店舗としての利用も相談いただけます。 7年の長期契約が可能なため、拠点をじっくり構えたい企業様に最適です。トイレを完備しています。

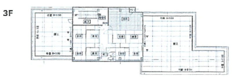
平面図

地図

画像をクリックすると上部の画像が切り替わります

お問い合わせいただいた後は、
経験豊富なスタッフが全力でご支援いたします!

お電話でのお問い合わせ

0120-66-7102

受付時間 10:00~18:00(土日祝日を除く)

物件については[物件No.12601-0165]とお伝えください。

メールフォームでのお問い合わせ

ログインして問い合わせる

中瓦町1丁 3階 (44.82坪) の基本情報

物件No 12601-0165
建物名 中瓦町1丁 3階 (44.82坪)
所在地
大阪府堺市堺区中瓦町1丁3-11  地図を見る 堺市堺区で他の物件を探す
募集階層/階建 地上3階 / 4階建
坪数(平米) 44.82 坪(148.15 ㎡)
築年月(竣工) 1975年12月(築50年)
耐震
構造 鉄骨鉄筋コンクリート(SRC)
最寄駅
用途 貸事務所・オフィス
店舗としてのご利用も可能です。詳細はお問い合わせください。
最終更新日 2026年1月16日

契約条件

※表示価格はすべて税抜表示です
賃料
308,000 円(税抜)
坪単価 6,871円/坪
共益費/管理費等 確認中
保証金/敷金 3ヶ月
保証金償却 無し
礼金 2ヶ月
更新料 確認中
更新事務手数料 確認中
仲介手数料 確認中
造作価格
その他費用 保険等:要
建物賃貸借区分 定期借家契約
契約期間 7年
指定保証会社必須 要加入 (株式会社セーフティーイノベーション)※月額固定費の1ヶ月
引渡時期 お問い合わせください
引渡状態
諸条件・相談 事務所可

設備詳細・その他

設備 トイレ
エレベーター
トイレ 有り
床仕様
空調
駐車場
特徴・魅力 2沿線以上利用可
事務所内装の備考
ビル設備の備考
担当者コメント 中瓦町1丁 3階は、南海電鉄高野線「堺東」から徒歩6分の中規模オフィス・貸事務所です。 広さは44.82坪あります。 24時間利用可能で、事務所だけでなく店舗としての利用も相談いただけます。 7年の長期契約が可能なため、拠点をじっくり構えたい企業様に最適です。トイレを完備しています。

お問い合わせいただいた後は、
経験豊富なスタッフが全力でご支援いたします!

お電話でのお問い合わせ

0120-66-7102

受付時間 10:00~18:00(土日祝日を除く)

物件については[物件No.12601-0165]とお伝えください。

メールフォームでのお問い合わせ

ログインして問い合わせる

ビルやお部屋の雰囲気

外観

マップで見る周辺の類似物件

「人型アイコン」を地図上にドラッグすることで『Google ストリートビュー』に切り替わります。

※地図上の「対象地」は実際の場所ではない場合がございます。詳しくはお問い合わせください。

お問い合わせフォームはこちら

お問い合わせいただいた後は、
経験豊富なスタッフが全力でご支援いたします!

お電話でのお問い合わせ

0120-66-7102

受付時間 10:00~18:00(土日祝日を除く)

物件については[物件No.12601-0165]とお伝えください。

メールフォームでのお問い合わせ

ログインして問い合わせる
この物件をご覧頂くには、会員登録(無料)が必要です。【無料会員登録】
No.{{ index + 1 }}
営業おすすめ NEW

非公開 掲載終了 商談中 物件写真
{{ estate.price_pending_type_name }} 価格未定

お探しのエリアで今注目の物件

この物件をご覧頂くには、会員登録(無料)が必要です。【無料会員登録】
No.{{ index + 1 }}
営業おすすめ NEW

非公開 掲載終了 商談中 物件写真
{{ estate.price_pending_type_name }} 価格未定

近隣のよく似た物件リスト

この物件をご覧頂くには、会員登録(無料)が必要です。【無料会員登録】
No.{{ index + 1 }}
営業おすすめ NEW

非公開 掲載終了 商談中 物件写真
{{ estate.price_pending_type_name }} 価格未定

この物件と同じ特徴から探す

近隣の路線・駅から物件を探す

南海電鉄高野線 / 難波 / 天下茶屋 / 三国ヶ丘 / 初芝

近隣のエリアから物件を探す

堺市東区 / 大阪市住之江区 / 堺市北区 / 大阪市住吉区 / 堺市西区

近畿エリアエリアから物件を探す

大阪府 / 兵庫県 / 京都府