ちいきぼオフィス賃貸事務所・賃貸オフィス一覧大阪府の賃貸事務所・賃貸オフィス一覧堺市堺区の賃貸事務所・賃貸オフィス一覧中瓦町1丁

物件No.12601-0163

中瓦町1丁 B1~1階 (226.54坪)

最終更新日:2026年3月26日

  • 賃料
    1,320,000 円(税抜)
  • 大阪府 堺市堺区 中瓦町1丁 3-11 地図で確認する
  • 堺東駅(南海電鉄高野線) 徒歩6分大小路駅(阪堺電気軌道阪堺線) 徒歩12分、花田口駅(阪堺電気軌道阪堺線) 徒歩14分
  • 4階建(1975年12月(築50年))
  • 引渡時期はお問い合わせください

この物件の特徴・魅力

  • 24時間利用可能
  • 営業おすすめ
  • 写真が豊富
  • VR内見あり
  • コスパ重視
  • 40人以上向けオフィス

担当者コメント

担当者

中瓦町1丁 地下1階~1階は、南海電鉄高野線「堺東」から徒歩6分の大規模オフィス・貸事務所です。 地下1階から1階までのメゾネットタイプで、200坪を超える広々とした空間が魅力です。 24時間利用可能で、事務所だけでなく店舗としての利用も相談いただけます。 7年の長期契約が可能なため、拠点をじっくり構えたい企業様に最適です。トイレを完備しています。

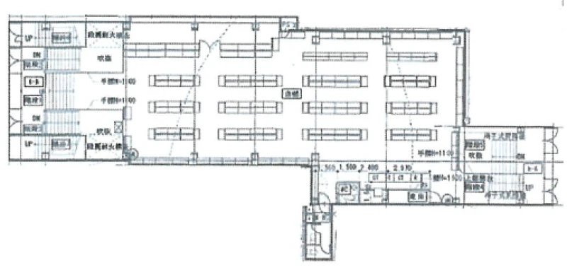
平面図

地図

お問い合わせいただいた後は、
経験豊富なスタッフが全力でご支援いたします!

お電話でのお問い合わせ

0120-66-7102

受付時間 10:00~18:00(土日祝日を除く)

物件については[物件No.12601-0163]とお伝えください。

メールフォームでのお問い合わせ

ログインして問い合わせる

中瓦町1丁 B1~1階 (226.54坪) の基本情報

物件No 12601-0163
建物名 中瓦町1丁 B1~1階 (226.54坪)
所在地
大阪府堺市堺区中瓦町1丁3-11  地図を見る 堺市堺区で他の物件を探す
募集階層/階建 地下1階~地上1階 / 4階建
坪数(平米) 226.54 坪(748.89 ㎡)
築年月(竣工) 1975年12月(築50年)
耐震
構造 鉄骨鉄筋コンクリート(SRC)
最寄駅
用途 貸事務所・オフィス
店舗としてのご利用も可能です。詳細はお問い合わせください。
最終更新日 2026年3月26日

契約条件

※表示価格はすべて税抜表示です
賃料
1,320,000 円(税抜)
坪単価 5,826円/坪
共益費/管理費等 確認中
保証金/敷金 無し
保証金償却 無し
礼金 3ヶ月
更新料 確認中
更新事務手数料 確認中
仲介手数料 確認中
造作価格
その他費用 火災保険:要
建物賃貸借区分 定期借家契約
契約期間 7年
指定保証会社必須 要加入 (株式会社セーフティーイノベーション)※月額固定費の1ヶ月
引渡時期 お問い合わせください
引渡状態
諸条件・相談 事務所可

設備詳細・その他

設備 トイレ
エレベーター
トイレ 有り
床仕様
空調
駐車場
特徴・魅力 2沿線以上利用可
事務所内装の備考
ビル設備の備考
担当者コメント 中瓦町1丁 地下1階~1階は、南海電鉄高野線「堺東」から徒歩6分の大規模オフィス・貸事務所です。 地下1階から1階までのメゾネットタイプで、200坪を超える広々とした空間が魅力です。 24時間利用可能で、事務所だけでなく店舗としての利用も相談いただけます。 7年の長期契約が可能なため、拠点をじっくり構えたい企業様に最適です。トイレを完備しています。

動画/VR

お問い合わせいただいた後は、
経験豊富なスタッフが全力でご支援いたします!

お電話でのお問い合わせ

0120-66-7102

受付時間 10:00~18:00(土日祝日を除く)

物件については[物件No.12601-0163]とお伝えください。

メールフォームでのお問い合わせ

ログインして問い合わせる

ビルやお部屋の雰囲気

外観

内観・その他

  • 1階

  • 1階

  • 1階

  • 1階

  • 1階

  • 1階→地下1階階段

  • 1階入り口階段

  • 1階

  • 地下1階→1階階段

  • 地下1階→1階階段

  • 地下1階

  • 地下1階

  • 地下1階

  • 地下1階

  • 地下1階

  • 地下1階

  • 女性用トイレ

マップで見る周辺の類似物件

「人型アイコン」を地図上にドラッグすることで『Google ストリートビュー』に切り替わります。

※地図上の「対象地」は実際の場所ではない場合がございます。詳しくはお問い合わせください。

お問い合わせフォームはこちら

お問い合わせいただいた後は、
経験豊富なスタッフが全力でご支援いたします!

お電話でのお問い合わせ

0120-66-7102

受付時間 10:00~18:00(土日祝日を除く)

物件については[物件No.12601-0163]とお伝えください。

メールフォームでのお問い合わせ

ログインして問い合わせる
この物件をご覧頂くには、会員登録(無料)が必要です。【無料会員登録】
No.{{ index + 1 }}
営業おすすめ NEW

非公開 掲載終了 商談中 物件写真
{{ estate.price_pending_type_name }} 価格未定

お探しのエリアで今注目の物件

この物件をご覧頂くには、会員登録(無料)が必要です。【無料会員登録】
No.{{ index + 1 }}
営業おすすめ NEW

非公開 掲載終了 商談中 物件写真
{{ estate.price_pending_type_name }} 価格未定

近隣のよく似た物件リスト

この物件をご覧頂くには、会員登録(無料)が必要です。【無料会員登録】
No.{{ index + 1 }}
営業おすすめ NEW

非公開 掲載終了 商談中 物件写真
{{ estate.price_pending_type_name }} 価格未定

この物件と同じ特徴から探す

近隣の路線・駅から物件を探す

南海電鉄高野線 / 難波 / 天下茶屋 / 三国ヶ丘 / 初芝

近隣のエリアから物件を探す

堺市東区 / 大阪市住之江区 / 堺市北区 / 大阪市住吉区 / 堺市西区

近畿エリアエリアから物件を探す

大阪府 / 兵庫県 / 京都府