ちいきぼオフィス賃貸事務所・賃貸オフィス一覧神奈川県の賃貸事務所・賃貸オフィス一覧藤沢市の賃貸事務所・賃貸オフィス一覧コンブロンビル

物件No.12601-0153

コンブロンビル B1~1階 (71.25坪)

最終更新日:2026年5月13日

  • 賃料
    300,000 円(税抜)
  • 神奈川県 藤沢市 善行1丁目 10-3 地図で確認する
  • 善行駅(小田急江ノ島線) 徒歩4分
  • 4階建(地下1階建)(1981年12月(築44年))
  • 即入居可能

この物件の特徴・魅力

  • 営業おすすめ
  • 駅徒歩5分以内
  • 即入居可能
  • 写真が豊富
  • コスパ重視
  • 31~40人向けオフィス

担当者コメント

担当者

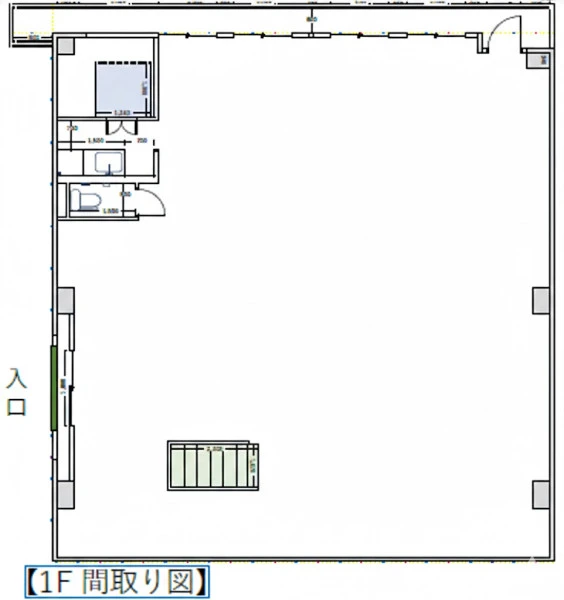
コンブロンビル 地下1階~1階は、小田急江ノ島線「善行」から徒歩4分のオフィス・貸事務所です。地下1階から地上1階のメゾネット形式で、合計約71.25坪の広々とした空間が魅力です。駅近ながら周辺は落ち着いた環境で、業務に集中いただけます。保証金3ヶ月と初期費用を抑えて入居可能です。トイレを完備しています。

平面図

地図

お問い合わせいただいた後は、
経験豊富なスタッフが全力でご支援いたします!

お電話でのお問い合わせ

0120-66-7102

受付時間 10:00~18:00(土日祝日を除く)

物件については[物件No.12601-0153]とお伝えください。

メールフォームでのお問い合わせ

ログインして問い合わせる

コンブロンビル B1~1階 (71.25坪) の基本情報

物件No 12601-0153
建物名 コンブロンビル B1~1階 (71.25坪)
所在地
神奈川県藤沢市善行1丁目10-3  地図を見る 藤沢市で他の物件を探す
募集階層/階建 地下1階~地上1階 / 4階建(地下1階建)
坪数(平米) 71.25 坪(235.53 ㎡)
築年月(竣工) 1981年12月(築44年)
耐震
構造 鉄骨造
最寄駅
用途 貸事務所・オフィス
店舗としてのご利用も可能です。詳細はお問い合わせください。
最終更新日 2026年5月13日

契約条件

※表示価格はすべて税抜表示です
賃料
300,000 円(税抜)
坪単価 4,210円/坪
共益費/管理費等 無し
保証金/敷金 3ヶ月
保証金償却 保証金償却あり
礼金 1ヶ月
更新料 0.5ヶ月
更新
新賃料
更新事務手数料 確認中
仲介手数料 確認中
造作価格
その他費用 家財保険:借主にて別途加入/3年未満の解約時保証金の30%、以降借主都合解約時保証金の10%
建物賃貸借区分
契約期間 3年
指定保証会社必須 要加入 (株式会社セーフティーイノベーション)※月額固定費の1ヶ月
引渡時期 即入居可能
引渡状態
諸条件・相談 事務所可

設備詳細・その他

設備 上水道、下水道、トイレ、温水洗浄便座、電気
エレベーター 無し
トイレ 室内
床仕様
空調
駐車場 無 
特徴・魅力
事務所内装の備考 LED照明器具
ビル設備の備考
担当者コメント コンブロンビル 地下1階~1階は、小田急江ノ島線「善行」から徒歩4分のオフィス・貸事務所です。地下1階から地上1階のメゾネット形式で、合計約71.25坪の広々とした空間が魅力です。駅近ながら周辺は落ち着いた環境で、業務に集中いただけます。保証金3ヶ月と初期費用を抑えて入居可能です。トイレを完備しています。

お問い合わせいただいた後は、
経験豊富なスタッフが全力でご支援いたします!

お電話でのお問い合わせ

0120-66-7102

受付時間 10:00~18:00(土日祝日を除く)

物件については[物件No.12601-0153]とお伝えください。

メールフォームでのお問い合わせ

ログインして問い合わせる

ビルやお部屋の雰囲気

外観

内観・その他

マップで見る周辺の類似物件

「人型アイコン」を地図上にドラッグすることで『Google ストリートビュー』に切り替わります。

※地図上の「対象地」は実際の場所ではない場合がございます。詳しくはお問い合わせください。

お問い合わせフォームはこちら

お問い合わせいただいた後は、
経験豊富なスタッフが全力でご支援いたします!

お電話でのお問い合わせ

0120-66-7102

受付時間 10:00~18:00(土日祝日を除く)

物件については[物件No.12601-0153]とお伝えください。

メールフォームでのお問い合わせ

ログインして問い合わせる
この物件をご覧頂くには、会員登録(無料)が必要です。【無料会員登録】
No.{{ index + 1 }}
営業おすすめ NEW

非公開 掲載終了 商談中 物件写真
{{ estate.price_pending_type_name }} 価格未定

お探しのエリアで今注目の物件

この物件をご覧頂くには、会員登録(無料)が必要です。【無料会員登録】
No.{{ index + 1 }}
営業おすすめ NEW

非公開 掲載終了 商談中 物件写真
{{ estate.price_pending_type_name }} 価格未定

近隣のよく似た物件リスト

この物件をご覧頂くには、会員登録(無料)が必要です。【無料会員登録】
No.{{ index + 1 }}
営業おすすめ NEW

非公開 掲載終了 商談中 物件写真
{{ estate.price_pending_type_name }} 価格未定

この物件と同じ特徴から探す

近隣の路線・駅から物件を探す

小田急江ノ島線 / 鶴間 / 高座渋谷 / 湘南台 / 藤沢 / 本鵠沼

近隣のエリアから物件を探す

鎌倉市 / 横浜市戸塚区 / 茅ヶ崎市 / 横浜市泉区 / 逗子市

関東エリアエリアから物件を探す

東京都 / 神奈川県 / 埼玉県 / 千葉県