ちいきぼオフィス賃貸事務所・賃貸オフィス一覧東京都の賃貸事務所・賃貸オフィス一覧目黒区の賃貸事務所・賃貸オフィス一覧貸事務所

物件No.12511-0581

貸事務所 2階 (31.97坪)

最終更新日:2025年12月18日

  • 賃料
    450,000 円(税抜)
  • 東京都 目黒区 中根2丁目 13-11 地図で確認する
  • 都立大学駅(東急東横線) 徒歩3分
  • 5階建(1991年3月(築35年))
  • 引渡時期はお問い合わせください

この物件の特徴・魅力

  • セキュリティ充実
  • 営業おすすめ
  • 駅徒歩5分以内
  • 写真が豊富
  • 男女別トイレ
  • エレベーターあり
  • 現状渡し
  • コスパ重視
  • 30坪台オフィス
  • 16~20人向けオフィス

担当者コメント

担当者

貸事務所 2階は、東急東横線「都立大学」から徒歩3分の小規模オフィス・貸事務所です 。31.97坪の広さで、コンパクトオフィスやスモールオフィスをお探しの中小企業におすすめです 。駅徒歩3分とアクセスが良い点も大きな魅力です 。トイレ、エアコン、エレベーターを完備しており快適にご利用いただけます。

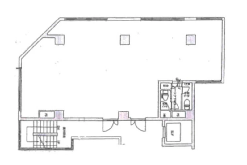
平面図

地図

お問い合わせいただいた後は、
経験豊富なスタッフが全力でご支援いたします!

お電話でのお問い合わせ

0120-66-7102

受付時間 10:00~18:00(土日祝日を除く)

物件については[物件No.12511-0581]とお伝えください。

メールフォームでのお問い合わせ

ログインして問い合わせる

貸事務所 2階 (31.97坪) の基本情報

物件No 12511-0581
建物名 貸事務所 2階 (31.97坪)
所在地
東京都目黒区中根2丁目13-11  地図を見る 目黒区で他の物件を探す
募集階層/階建 地上2階 / 5階建
坪数(平米) 31.97 坪(105.68 ㎡)
築年月(竣工) 1991年3月(築35年)
耐震
構造 鉄筋コンクリート(RC)
最寄駅
用途 貸事務所・オフィス
店舗としてもご利用いただけます。詳細についてはお問い合わせください。
最終更新日 2025年12月18日

契約条件

※表示価格はすべて税抜表示です
賃料
450,000 円(税抜)
坪単価 14,075円/坪
共益費/管理費等 25,600円
保証金/敷金 4,950,000円
保証金償却 2ヶ月
礼金 1ヶ月
更新料 1ヶ月
更新
新賃料
更新事務手数料 5,000円
仲介手数料 1ヶ月
造作価格
その他費用 火災保険加入/退室時、貸主指定の清掃業者による清掃代負担あり
建物賃貸借区分 普通借家契約
契約期間 2年
指定保証会社必須 要加入 (株式会社セーフティーイノベーション)※月額固定費の1ヶ月
引渡時期 お問い合わせください
引渡状態 現状渡し
諸条件・相談

設備詳細・その他

設備 エアコン、エレベーター、トイレ
エレベーター 有り
トイレ 室内、男女別
床仕様
空調 有り
駐車場
特徴・魅力
事務所内装の備考
ビル設備の備考 Bフレッツ導入済・CATV(利用可)・防犯カメラ設置・共用部分の一部を綜合警備保障依頼
担当者コメント 貸事務所 2階は、東急東横線「都立大学」から徒歩3分の小規模オフィス・貸事務所です 。31.97坪の広さで、コンパクトオフィスやスモールオフィスをお探しの中小企業におすすめです 。駅徒歩3分とアクセスが良い点も大きな魅力です 。トイレ、エアコン、エレベーターを完備しており快適にご利用いただけます。

お問い合わせいただいた後は、
経験豊富なスタッフが全力でご支援いたします!

お電話でのお問い合わせ

0120-66-7102

受付時間 10:00~18:00(土日祝日を除く)

物件については[物件No.12511-0581]とお伝えください。

メールフォームでのお問い合わせ

ログインして問い合わせる

ビルやお部屋の雰囲気

外観

  • エントランス

  • ポスト

  • 設備

  • 看板

  • 看板

  • 看板

内観・その他

  • 出入口

  • 出入口

  • 出入口

  • 出入口

  • 周辺

  • 周辺

周辺環境

  • 【駅】都立大学駅  

マップで見る周辺の類似物件

「人型アイコン」を地図上にドラッグすることで『Google ストリートビュー』に切り替わります。

※地図上の「対象地」は実際の場所ではない場合がございます。詳しくはお問い合わせください。

お問い合わせフォームはこちら

お問い合わせいただいた後は、
経験豊富なスタッフが全力でご支援いたします!

お電話でのお問い合わせ

0120-66-7102

受付時間 10:00~18:00(土日祝日を除く)

物件については[物件No.12511-0581]とお伝えください。

メールフォームでのお問い合わせ

ログインして問い合わせる
この物件をご覧頂くには、会員登録(無料)が必要です。【無料会員登録】
No.{{ index + 1 }}
営業おすすめ NEW

非公開 掲載終了 商談中 物件写真
{{ estate.price_pending_type_name }} 価格未定

お探しのエリアで今注目の物件

この物件をご覧頂くには、会員登録(無料)が必要です。【無料会員登録】
No.{{ index + 1 }}
営業おすすめ NEW

非公開 掲載終了 商談中 物件写真
{{ estate.price_pending_type_name }} 価格未定

近隣のよく似た物件リスト

この物件をご覧頂くには、会員登録(無料)が必要です。【無料会員登録】
No.{{ index + 1 }}
営業おすすめ NEW

非公開 掲載終了 商談中 物件写真
{{ estate.price_pending_type_name }} 価格未定

この物件と同じ特徴から探す

近隣の路線・駅から物件を探す

東急東横線 / 祐天寺 / 学芸大学 / 自由が丘 / 新丸子 / 武蔵小杉

近隣のエリアから物件を探す

渋谷区 / 世田谷区 / 品川区 / 港区 / 新宿区

関東エリアエリアから物件を探す

東京都 / 神奈川県 / 埼玉県 / 千葉県